Das Haus
Fäche Haus
- Dachgeschoß 117,00 m²
- Balkon 9,8 m²
- Erdgeschoss 141,83 m²
- Terrasse 34,94 m²
- Untergeschoss/Keller 139,2 m²
Fläche Carport 32 m²
Fläche 2 Gartengebäude 20 m² und 12 m²
Pergola 22m²
Fläche Grunstück 1877 m²
Dachgeschoss
Zimmer 1 - 11,5 m²
Zimmer 2 - 22,8 m²
Schrankraum - 6,8 m²
Vorraum - 6,3 m²
WC - 2,1 m²
Bad - 4,2 m²
Atelier- 63,3 m²
Gesamt: 117,00 m²
Balkon - 9,8 m²
Erdgeschoss
Zimmer 1 - 13,02 m²
Zimmer 2 - 13,44 m²
Zimmer 3 - 20,21 m²
Wohnzim - 45,94 m²
Vorraum - 17,46 m²
WC - 1,32 m²
Bad - 8,12 m²
Küche - 22,32 m²
Gesamt: 141,83 m²
Terrasse - 34,94 m²
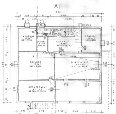
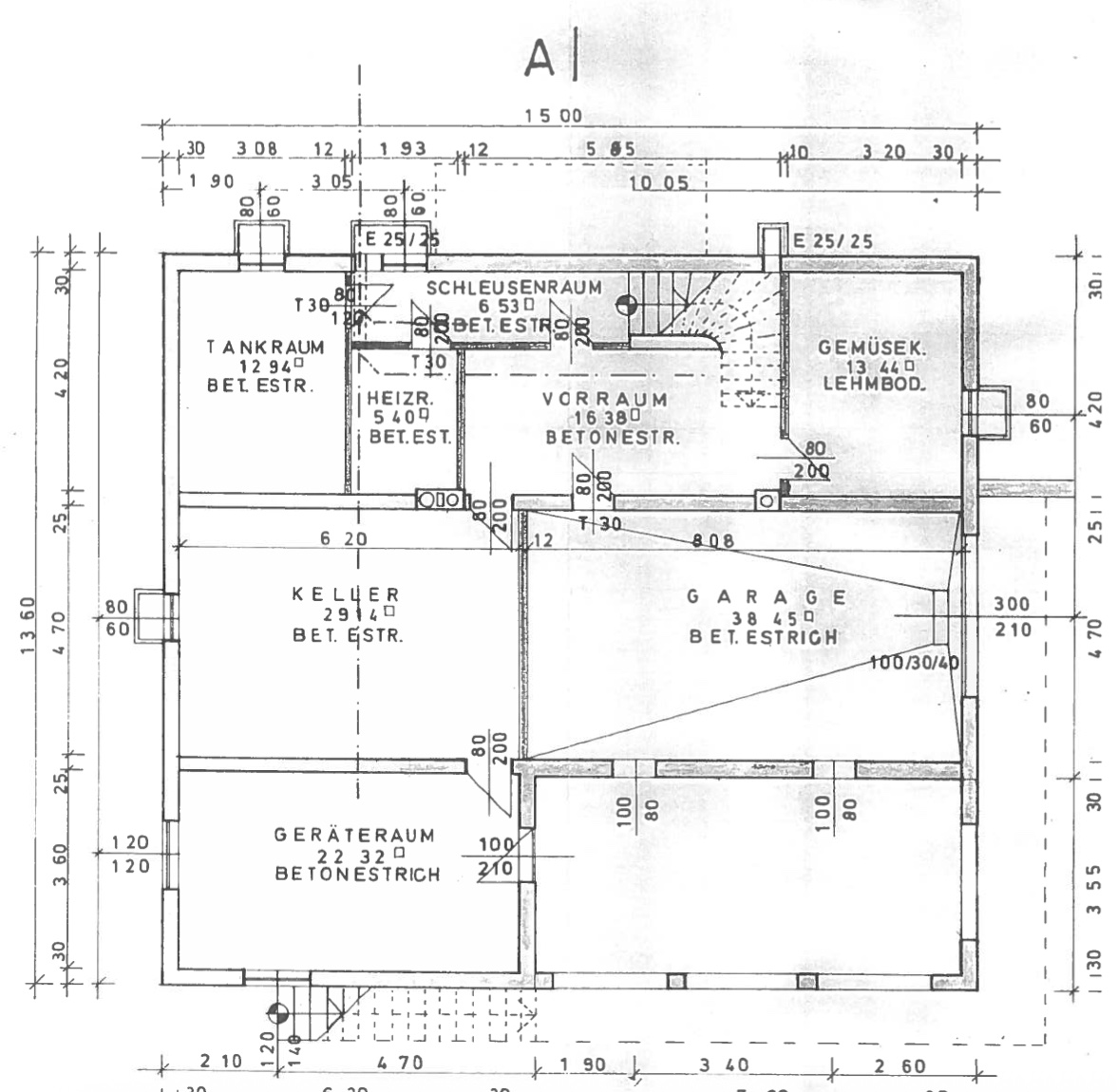
Keller
Raum 1 - 12,94 m²
Raum 2 - 13,44 m²
Küche - 29,14 m²
Zimmer 1 - 22,32 m²
Vorraum 1 - 16,38 m²
Vorraum 2 - 6,53 m²
Garage - 38,45 m²
Heizraum - 5,40 m²
Gesamt: 144,60 m²
Terrasse (Arkaden) - 31,68 m²
Die Warmwasser-Wärmepumpe Europa 323 DK von OCHSNER
Inbetriebnahme Dezember 2018
Die Wärmepumpe Europa 323 DK ist ein Kompaktgerät mit einem 300 Liter Speicher.
Die Europa 323 DK Wärmepumpe wird "steckerfertig" zur einfachen Montage geliefert.
Eine Tauchhülse ermöglicht die Anbringung eines Fremdthermostates oder Sensors.
Die Warmwasser-Wärmepumpe erreicht im Wärmepumpenbetrieb eine Wassertemperatur bis 65°C.
Ein E-Heizstab sowie zwei Stück Magnesiumschutzanoden sind serienmäßig eingebaut.
Eine Legionellenschaltung durch Wärmepumpenbetrieb ist integriert.
Durch Direktkondensation wird ein optimaler Wärmeeintrag erreicht.

Hoval Thermalia® comfort (6-17)
Inbetriebnahme Dezember 2021
Sole/Wasser-Wärmepumpe zum Heizen und zum Erzeugen von Warmwasser. Innenaufstellung, Vorlauftemperatur bis 62 °C.
Verantwortung für Energie und Umwelt übernehmen und gleichzeitig komfortabel wohnen: Das geht! Die Erd- und Grundwasser-Wärmepumpe gewinnt wertvolle Energie aus dem Erdreich oder dem Grundwasser unter Einsatz von Strom als Antriebsenergie.
Leistung 1-30kW

PV Anlage
Leistung: 5 kW Peak
Stromverbrauch
Stromverbruach inkl. Heizung (Wärmepumpe) bis Nov. 2025









